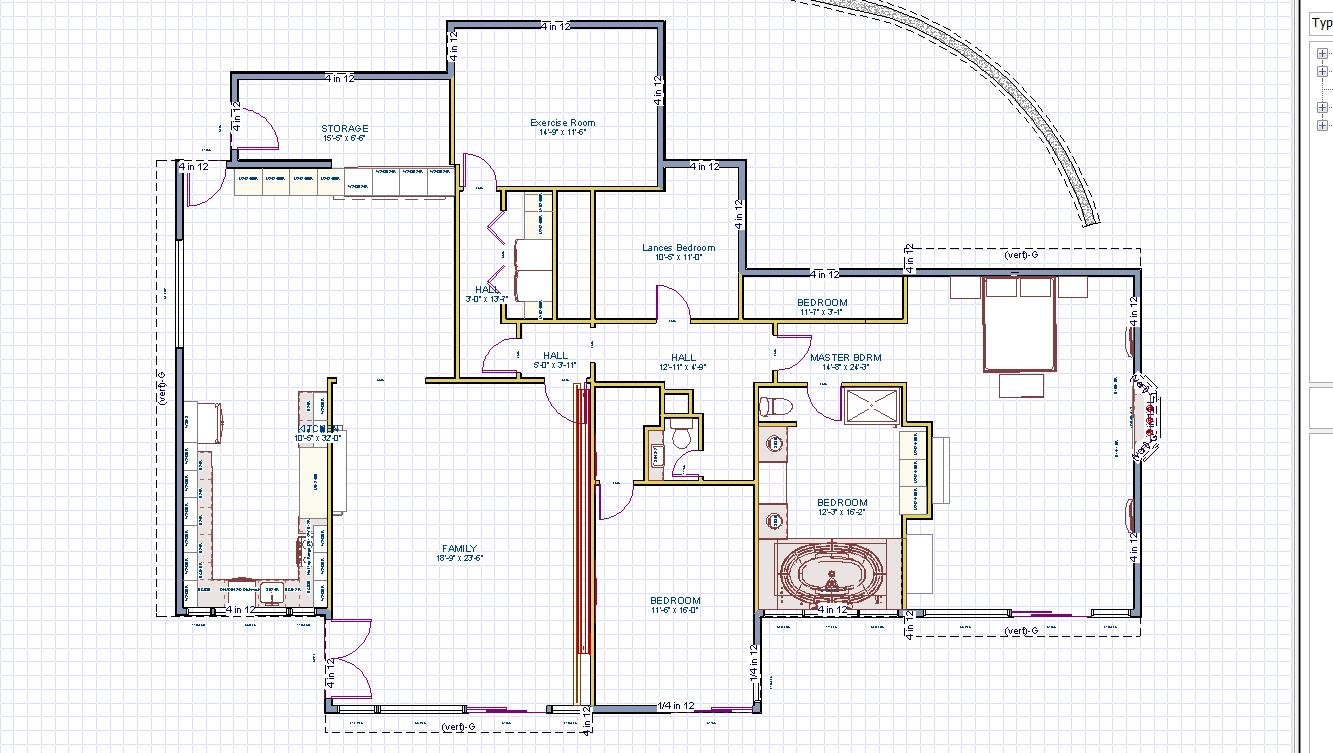
Here is what the home is currently like (approx!)

Here are the changes we are proposing:

We are moving the master bedroom wall s out by 5 ft and down by 8ft
Creating Master bath, we want to resurface the walls, update all fixtures, floors etc.
Redo all wiring, change panel to 250amp, homerun all communications including phone, cat6, intercom, security, etc.
Add solar
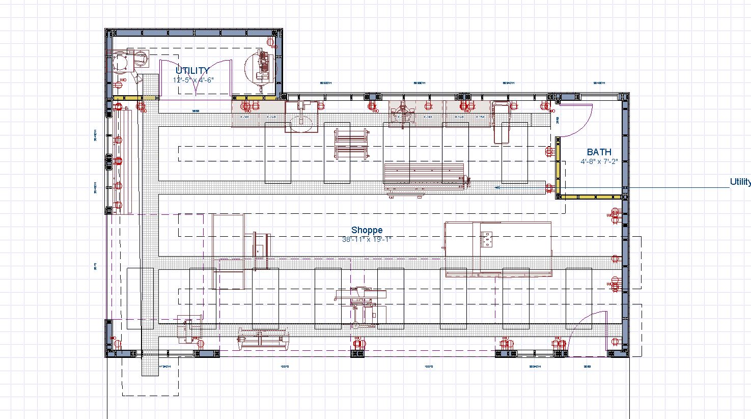
And then add the following shop:

This may be a steel building (getting more info). Slab will have utility trough for dust collection, electrical outlets etc.
Here is a cross section of the utility trough
Here is a diagram showing heights of outlets
Copyright or other proprietary statement goes here.
For problems or questions regarding this Web site contact
[ProjectEmail].
Last updated: 12/29/11.